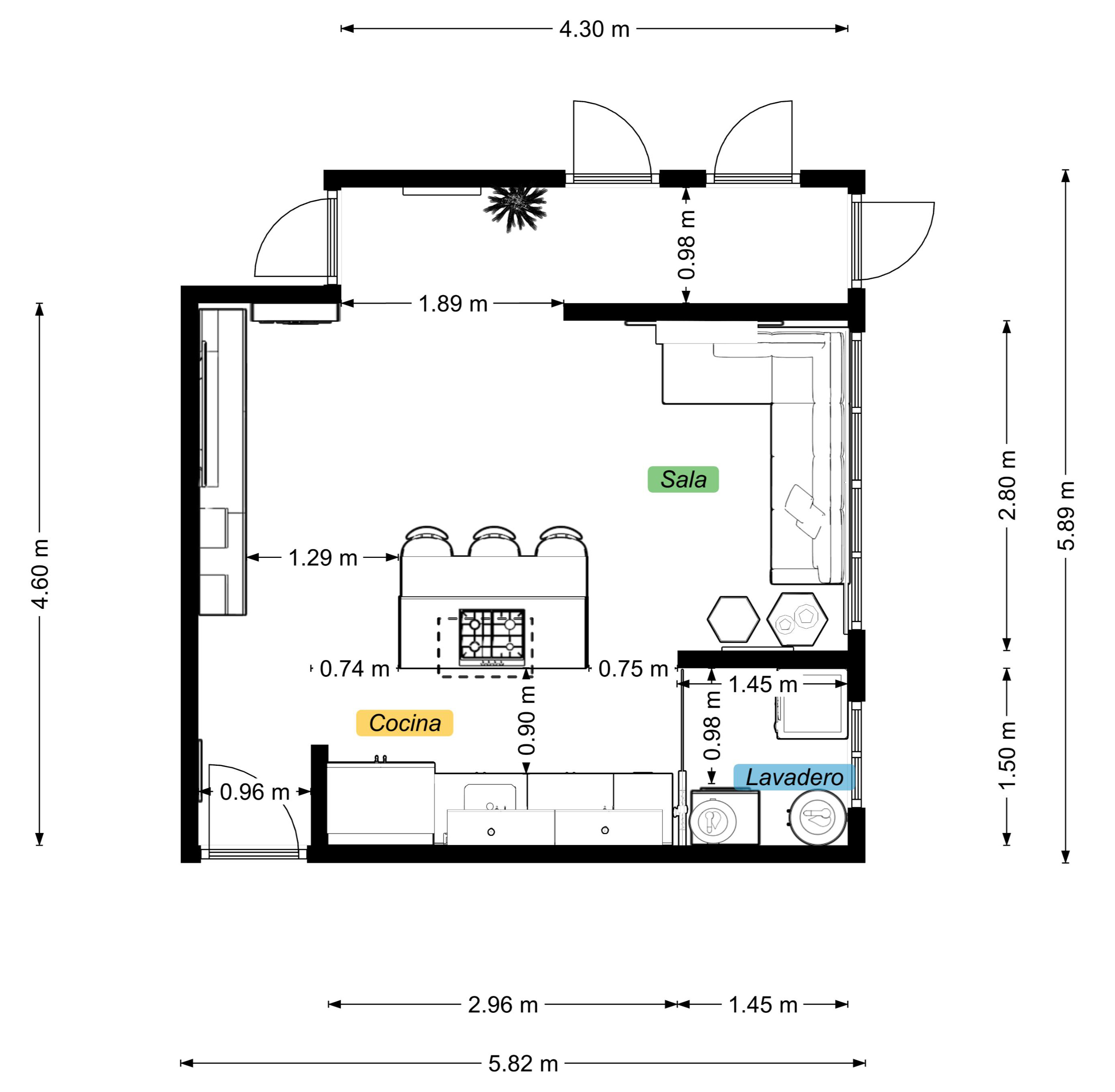
Apartamento
Se modificó el plano original recortando la pared que divide el lavadero de la sala para dar más espacio a un diseño de cocina isla.
Se hizo un techo completo en Dry-Wall en el pasillo de entrada para empotrar luces spot. En la Sala se hizo un diseño en Dry-Wall de techo suspendido con luces indirectas LED.
Las paletas de colores fue escogida para dar más amplitud al espacio y dar una mayor sensación de confort.
El estilo del diseño es contemporáneo, escogiendo los mobiliarios y ubicándolos de la mejor forma para aprovechar su funcionalidad y no afectar la circulación del cliente en el entorno.
- 
											
											
Naguanagua-Edo Carabobo. Venezuela
 - 
											
											
Josue Márquez
 - 
											
											
27m2