Tienda
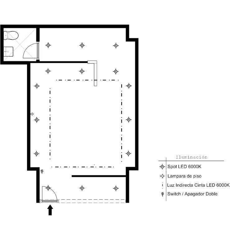
Se modificó el plano original agregando dos paredes Dry-Wall, una pared para crear el área del taller y a su vez ocultar la visibilidad de entrada al baño. La segunda pared Dry-Wall separa la exhibición de la caja de pago.
Se hizo un techo completo en Dry-Wall en el área del taller y en el área de exhibición para empotrar luces spot LED. En el área de la tienda se hizo un techo de dos niveles tipo martillo con luces indirectas cinta LED aprovechando el techo existente.
Los colores, el logo y la frase fueron escogidos según el catálogo de la empresa para generar un estilo personalizado. También se usaron los colores pastel para resaltar mejor el inventario.
El estilo del diseño va acorde al producto estrella de la tienda. Se usó un mural en la pared de Dry-Wall estilo vintage para dar más sensación de amplitud, adicionalmente se puede utilizar como un stand de fotografías para las redes sociales.
- 
											
											
Lima - Perú
 - 
											
											
Josue Márquez
 - 
											
											
35m2