Fachada

Galpón


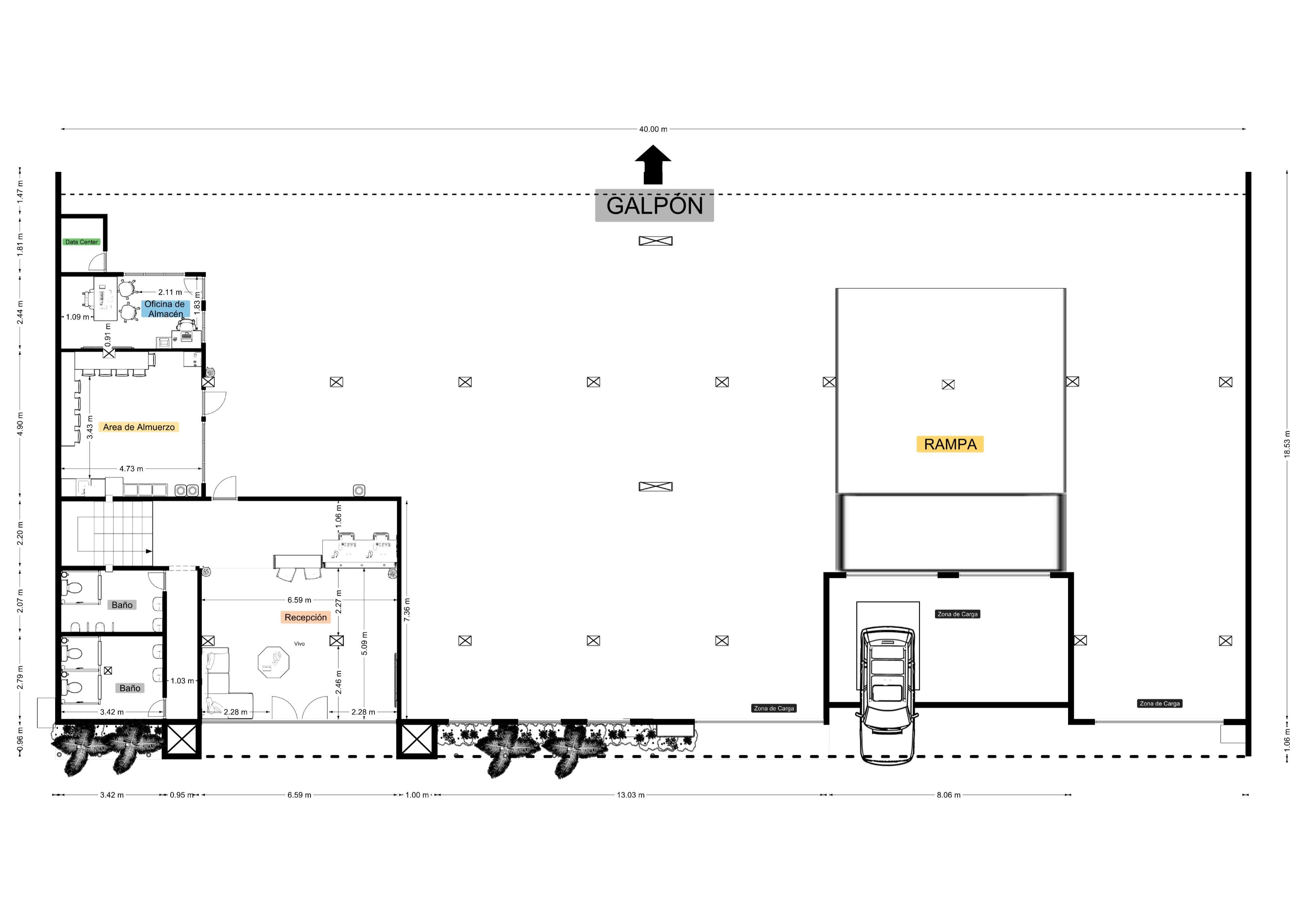
Se diseñó toda la parte de fachada y estacionamiento haciendo un cambio radical de una fachada antigua. El cliente quería algo más innovador y a la vez funcional que cubriera las necesidades de una empresa de envíos nacionales e internacionales, contando así con 4 MC Mantenimientos y Servicios Josue C.A.nes de despachos para cargas de mercancía en simultáneo, pero tampoco descuidando y dejando la estética de lado.

En la entrada principal se cambió de una puerta antigua a una entrada más grande de vidrio que representara la empresa con una recepción de dimensiones considerables.

  • Valencia-Edo Carabobo. Venezuela

  • Josue Márquez

  • 3000m2